当前位置:首页 → 建筑工程 → 二级造价工程师 → 土建建设工程计量与计价实务->某建筑物平面图、1-1剖面图如图所示。墙厚240mm,则按清
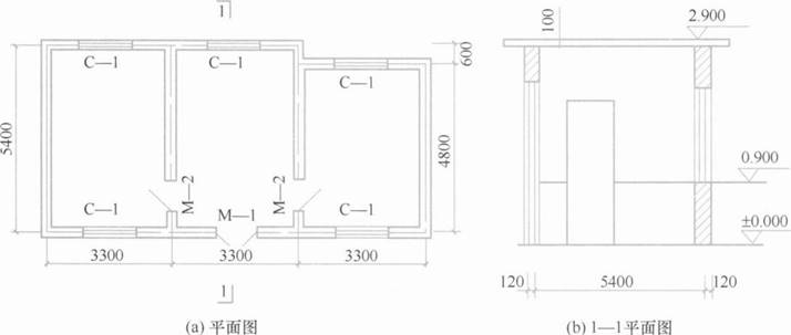
某建筑物平面图、1-1剖面图如图所示。墙厚240mm,则按清单计价规定,人工场地平整工程量为( )。

建筑物场地厚度≤±300mm的挖、填、运、找平,应按平整场地项目编码列项。厚度>±300mm的竖向布置挖土或山坡切土应按一般土方项目编码列项。
按设计图示尺寸以建筑物首层建筑面积计算。项目特征包括土壤类别、弃土运距、取土运距。
人工场地平整工程量为:(3.3×3+0.24)×(5.4+0.24)-3.3×0.6=55.21m2。
根据《国务院关于投资体制改革的决定》实行备案制的项目是()。
根据《建筑工程施工质量验收统一验收标准》,下列工程中,属于分项工程的是()。
根据《建筑工程施工质量验收统一标准》 , 下列工程中, 属于分项工程的是( ) 。
根据《国务院关于投资体制改革的决定》,对于采用直接投资和资本金注入方式的政府投资项目,除特殊情况外,政府部门不再审批()。
根据《建设工程质量管理条例》, 在正常使用条件下, 供热与供冷系统的最低保修期限是( ) 个采暖期、 供冷期。
在下列情形中,不构成缔约过失责任的是()。
根据《中华人民共和国建筑法》,关于施工许可证的申领,下列说法不正确的是( )。
根据《民法典》,下列各类合同中,属于无效合同的有()。
属于建设项目合同价款确定内容的是( )。
关于合同价款纠纷的处理原则,下列说法正确的有( )。